SOCIAL HOUSING - UNPACKED Studio
SOCIAL HOUSING - UNPACKED Studio

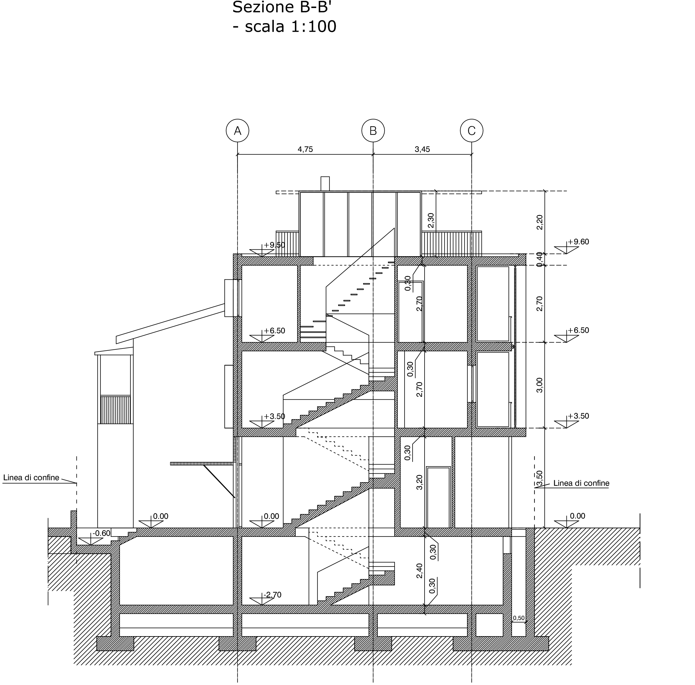
Dallas Housing

Social Housing
Design Team: Daniele Mancini, Renzo Mancini, Irene Rinaldi, Simone Nicastro

BAR DALLAS - UNPACKED Studio
BAR DALLAS – UNPACKED Studio
BAR DALLAS - UNPACKED Studio
BAR DALLAS – UNPACKED Studio
BAR DALLAS - UNPACKED Studio
BAR DALLAS – UNPACKED Studio
BAR DALLAS - UNPACKED Studio
BAR DALLAS – UNPACKED Studio
BAR DALLAS - UNPACKED Studio
BAR DALLAS – UNPACKED Studio
LOGO UNPACKED STUDIO

// What is

UNPACKED Studio is a professional practice based in Rome (Italy) operating within the traditional fields of architecture and urban planning but also interested in exploring the contemporary through other creative approaches.

// What we do

UNPACKED Studio provides services in the fields of Design, Communication, Architecture, Urban Planning, Participatory Process, Innovative Education and Research.

Jump here for more commitements

// Mission

UNPACKED Studio is a common ground for speculations over cross-fertilizing projects involving several professionals from diverse disciplines. We like experimenting cutting-edge approaches between digital and analog.

// Who we are

UNPACKED Studio has been founded by Daniele Mancini and Irene Rinaldi, both architects and educators.

Daniele Mancini is Ph.D. in Theory of Architecture. He worked in France at Jakob+ MacFarlane Architects and in The Netherlands at Wiel Arets Architects. He is currently involved in teaching activities at IED Istituto Europeo di Design di Roma.

Irene Rinaldi worked in Spain at De La Puerta Architects and in Italy at Schiattarella Associati where participated to the design of Italian Pavillon for the Japan Expo 2005 in Aichi (Nagoya)

UNPACKED Studio started in January 2005 thanks to the Young Entrepreneurs European funds “Sviluppo Italia”.